The Wall in Democratic Architecture:

Mediating between inside and outside at Hansaviertel & the Berlin Wall

Figure 1: Hoffman, Berlin Olympic Stadium, 1936, photograph.

Figure 2: Aerial view of the Colosseum, photograph.

Figure 3: Unknown, Land parcelling in 19th century Hansaviertel, C.1935, pen on paper.

Source: https://nashi-progulki.ru/ru/list/article.php?id=3694

Figure 4: Gerhard Jobst and Willy Kreuer, Winning design in the Ideas Competition for the Reconstruction of the Hansaviertel, 1953, pencil on paper.

Figure 6: Unknown, Allied occupation of Germany post WWII, 2010, digital graphic.

Figure 8: Madelon Vriesendorp, Delirious in New York cover, 1978, print.

Figure 10: Hugh Stubbins, Section of American Congress Hall, 1957, pen on paper.

Figure 12: Ullstein Bild, Construction of Congress Hall roof, 1958, photograph.

Figure 13: CIA, Construction of Berlin Wall, 1961, photograph.

Figure 14: Unkown, Model of Hansaviertel showing intersecting avenues, 1957, photograph.

Source: https://hansaviertel.berlin/en/interbau-1957/geschichte-der-interbau-1957/

Figure 16: Willy Kreuer, Plan of St. Ansgar, 1957, pen on paper.

Figure 17: Horst Siegmann, St. Ansgar’s windowed facade, 1964, photograph.

Figure 19: Erich Andres, American Congress Hall, 1961, photograph.

Figure 20: Raymond Lopez and Eugène Beaudouin, Plan of Bartningallee, 1957, pen on paper.

Figure 21: Horst Siegmann, North facade of Bartningallee showing asymmetrically arranged apartments, 1961, photograph.

The definition of democracy is an uncertain one, an ideal that struggles to be fully realised in its practical administration. This is especially compelling in the confrontation of Eastern and Western ideologies in divided post-war Berlin, as they seek to establish their ‘democracies’ against the other, and in doing so reveal the subjectivity of language. As the city requires physical and political reconstruction, architecture becomes poised to translate, through symbolism, concepts of individuality, equality and freedom that are being interchanged between both sides, an interesting relationship if we consider architecture to be its own language. In doing so architecture treads a border of binaries that is spatialised in the German Democratic Republic’s (GDR) Stalinallee urban project, and the Federal Parliamentary Republic’s (FPR) reactionary International Building Competition 1957 (Interbau), at Hansaviertel. Both projects seem occupied with projecting the strength of an ideological image, and thus their facades are turned inside out to define an external function. The wall, thus, becomes a tangible expression of power, as a delineation between inside and outside, between power source and audience. This dynamic reaches undemocratic clarification by the GDR’s erection of the Berlin Wall, which structurally prevents interchange between the interior and exterior realms. Thus, architecture’s role in democracy is twofold; symbolic and functional, while also being tainted by the former’s vulnerability to subversion, and the latter’s subsequent inefficacy.

Architecture has a tradition of being closely associated with democratic aspirations, as we value the first democracies, those of ancient Greece and Rome, largely through their architectural image. It is this image that is regurgitated in 19th century neo-classicism, and then appropriated by Adolf Hitler, to represent the Third Reich’s political strength and clarity1. Albert Speer’s design of the Berlin Olympic Stadium (figure one), recalling the form of the Colosseum (figure two), weaponises architecture for war.  Sport’s relationship to war in ancient Greek society was a close one, with both being perceived of as democratic, almost, civic, pursuits2. Speer’s conceptioncontains this merger between Germany’s olympic aspirations, and its political ones. Thus, if classical symbols of democracy can be subverted to take on antithetical meanings, how can the fidelity of architectural representation be protected? In opening up the reconstruction of the Hansaviertel district to a competition, the FPR democratise the process of design. The Interbau, was themed around reconstructing West Berlin as “The City of Tomorrow”, and in doing so emancipating it from the image of its past crimes. Interestingly, the GDP’s urban design project, the Stalinallee, described itself using almost exactly the same slogan3. The successful realisation of an entry followed the administrative process of a parliamentary election, or a judicial case, in which a jury of peers made decisions about, and elected a winning proposal. The development was aimed at rehousing tenants who had been displaced by the devastation of the war, but it also had ambitions of modelling potentials of democratic design through modernism4. Siting this major urban plan scheme in West Berlin, anticipated the return of the title of national capital to the city, and was an attempt to hasten it through architectural infrastructure.

Figure 5: Unknown, Model of Stalinallee after the competition draft of Hartmann, 1954, photograph.

Source: https://hansaviertel.berlin/en/interbau-1957/geschichte-der-interbau-1957/.

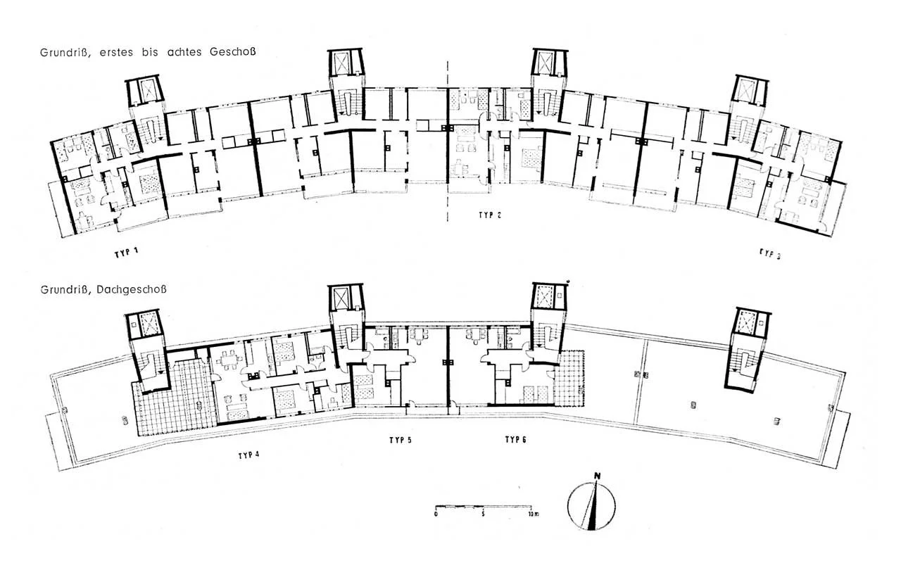
Democracy’s aesthetic must be redefined, just as Berlin, in ruins after Germany’s defeat, must be physically and politically rebuilt. This gives rise to a unique architectural opportunity to masterplan a major city, with the burden of its history being one of erasure rather than preservation. Denouncing the tenement housing of 19th century Berlin (figure three), and its concentration of multiple activities; living, working, leisure, in close proximity, as the cause for ‘the undemocratic spirit of the city”, the architects involved in the Hansaviertel project sought an organically organised cityscape, in which there was a clear delineation of building and landscape uses, that would contribute to a greater quality of life in the urban realm - and take shape as a utopia. The relationship of streets, green space, and built form in the winning proposal of Willy Kreuer and Gerhard Jobst (figure four), bears elements of Team X’s stem and web theory, as the buildings (webs) branch off from the main streets (stems), as though the entire plan is an "organ’ of the body of society.” Somewhat paradoxically, the plan is entirely predetermined under an “indispensable framework”, suggesting that its principle for organic spatiality belies its true rigidity. The impression of rigidity was something that western architects were keen to distance themselves from, and when contextualising the Hansaviertel project with its Eastern neighbour, the Stalinallee (figure five), the former’s looseness appears as a reaction to the latter’s authoritarian expression through axiality and monumentality. The belief that this style strained individuality, had roots not only in fascist governments favourability for it, but also in its essence as a style of imitation. Thus, the architects of Hansaviertel were searching for a new style to represent their ideological values.

Figure 7: Walter Gropius, Sketch of Händelallee, 1957, pen on paper.

Source: https://hansaviertel.berlin/en/interbau-1957/geschichte-der-interbau-1957/

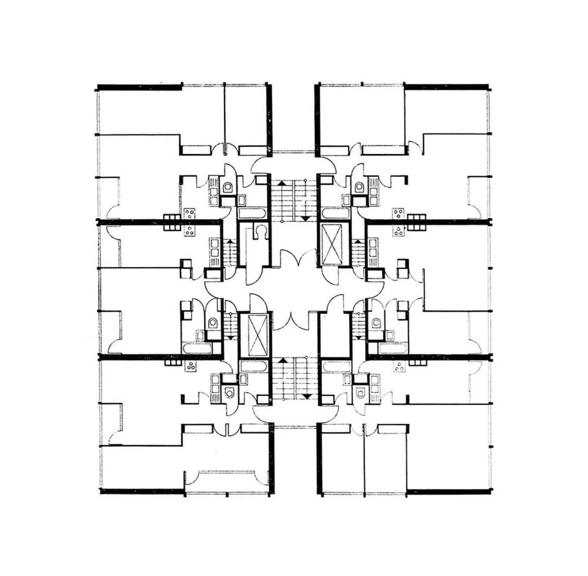
The international style that is pursued in the Hansaviertel designs perceives West Berlin’s ambiguous national identity, its ‘westernness’ being mostly conceptual as it is displaced from the rest of West Germany, which itself is under three way foreign occupation. While East Berlin was synonymous with soviet governance, and was also geographically accurate (figure six), West Berlin’s relationship to the western world was symbolically forged through its architectural image of modernity. The dominant exposed concrete profile of the buildings at Hansaviertel is one that “emphasises structure and displaying materials,” an expression of honesty and transparency not only in the construction of the buildings, but in their civic intentions. The focus on new construction technologies, connects the image of Hansaviertel with its post-war American lineage. Yet, while being arguably the most powerful of West Germany’s three occupants, The US was also the furthest away, and it is in the abstraction of the American skyscraper typology, that Hansaviertel’s architects consider how American form takes shape in the European continent. Walter Gropius’ residential design, Händelallee 3-9, is a high rise whose linearity is shifted to the horizontal plane (figure seven), as though the skyscraper has been flipped, it’s form becoming almost reminiscent of Madelon Vriesendorp’s cover for Delirious in New York (figure eight). This allows for more apartments to be grouped on the same level, promoting a sense of community, and its ensuing exchange. In doing this, Gropius diffuses the American culture of individualism, with a collective focus - an interesting interchange with the Eastern socialist ideology. The experimentation of the tower typology within the “same compositional logic” produces a diversity of building profiles, eschewing homogeneity to further an image of individuality as the city strives to establish its unique architectural identity (figure nine).

Figure 9: Unknown, Model of building typologies at Hansaviertel, Kreuer and Jobst, 1957, photograph.

Source: https://hansaviertel.berlin/en/interbau-1957/geschichte-der-interbau-1957/

In identifying itself as a counter to the GDR, West Berlin’s architecture assumes a function of projecting western democracy to other nations, perhaps more so than actually facilitating its application in its own. The United State’s contribution of a Congress Building to the Hansaviertel development embodies “representational architecture, such as model homes or cityscapes,” as its design unfolds from a programme that emphasises external observation. This is firstly established, in the relocation of the project to outside of the Hansaviertel district, so that it is sited right at the border to the Eastern side of the city. Hugh Stubbin’s innovative butterfly roof balloons over the structure (10), paralleling America’s technological command with an ideological one (figure 11). The hall levitates above the landscape on a quadratic base, almost as though it is a foreign aircraft, that has landed and is preparing to take over (figure 12). This reading becomes more compelling as a freestanding staircase extends from the base, a threshold that elevates the disenfranchisement of post war Berlin, to the promise of an alien, prosperous Americanism. The hall materialises, in an arguably monumental way, America’s presence in Germany, communicating its power to the East, in a way that inverts the modernist belief that form arises from function, as the latter is relocated externally. The visual propagandising of this is matched by the GDR in their construction of the Berlin Wall, which erects a monument to the ideological divide within the city.

Figure 11: Willy Kiel, Model of American Congress Hall, 1957, photograph.

The Berlin Wall, arguably, is a purification of the modernist form follows function philosophy, as it relates to the architectural element of the wall. Which through the blockage of movement, recovers its symbolic and functional meaning from construction technologies that had shifted the structural load from walls to internal skeletons, and from the modern eschewing of ornament. The GDR’s wall is one thats primary intention is to make a distinction between two places - inside and outside the Eastern sector (figure 13), and infringe upon the freedom of movement between the two. Inalienable to the wall, is the separation of interior and exterior, and this is emphasised in the Berlin Wall by the lack of windows or access ways, as liaisons between the two. In concealing the eastern and western sectors of the city from each other, the wall perpetuates a dynamic of ‘othering’. Thus, while being functionally straightforward, the wall contains a strong political message, and it is perhaps this feature that gives the structure architectural identity. Architecture becomes inextricable from ideology in this interpretation, as the former gains its quality through the latter. It is possible to consider the Wall, as an elevational protrusion of the street, and thus the central boulevard of the Stalinallee emerges as almost hostile in its singularity. Across the border, Jobst and Kreuer’s intersection of two central avenues that have “no need to establish straight and parallel lines and right angles,” instead allude to axiality by almost conforming to it, and then eschewing it (figure 14). The duality of central planes, offers greater choice in movement, which is perhaps linked to the quality of freedom of choice within democracy. Jobst’s description of city planning as “doing justice to all sides,” has underlying democratic messaging, that becomes pertinent as the Wall forges an antagonism between those sides.

Figure 15: Walter Gropius, Plans of Händelallee, 1957, pen on paper.

The effect of movement in the architecture of Hansaviertel anthropomorphises the built world with characteristics of changeability and interchange, that more faithfully align its representation to democracy. The plans of Gropius’ reveal that the facade’s curvature is achieved through straight walls being kinked in four places (figure 15), so that the building is ‘enveloping the lawn before it.” As though there is an exchange occurring between natural and built form, with the latter yielding to the former. The brief for the Interbau was concerned with the placement of ‘people in a green metropolis,” which makes Gropius’ concave treatment of entrance facade to his tower a threshold of sorts, mediating between the inner and outer realm. It is also perhaps an attempt to free architecture from the the tension of its fixedness, in its expression of an active idea like democracy. The departure from axiality, was one that Kreuer and Jobst intended for in the hypothetical buildings of their original design. The two buildings that frame the entrance to the site in their proposal, are angled towards each other, “just like people who turn to each other while having a chat.” Arranged on either side of a road, the two bays approach each other from an outside perspective, beckoning one in, and then part as one continues further into the development, giving way to a freer flow of movement (figure three). The imagery of the two bays tilting towards each other inspires a sense of democracy, that of two sides converging to bridge a border. 

Kreuer’s treatment of the redesign of the destroyed Catholic Church at Hansaviertel, initiates an intersection between modernity and historicism, as the programme of religious architecture is underlined by inherent conservatism. Kreuer’s church rises from a parabolic plan whose central axis faces towards the street, penetrating into the urban realm. Its western facade wraps around an internal courtyard, that mediates between the public, religious function of the building, and the private, domestic sector (figure 16). The south-eastern facade of the parabola is broken into a staggered array of windows, that are intersected by diagonal planes that imbue the structure with a transitory movement (figure 17). The structural vertical pillars that support this system are climaxed at the bell tower, at which point a horizontal plane intersects with the existing vertical one to top the church with the symbol of the cross. Unconventionally, Kreuer’s realisation of height in the design, is not an affect of accessing greater light internally, instead its goal seems to be the attention of an external audience. When sited within the modelled skyline of Jobst and Kreuer’s design, the church appears as a beacon, amidst the dense urbanity of the rest of the landscape (figure 18). This reintroduces the notion of architecture as representational propaganda, as it communicates that despite modernisms emphasis on the future, it is still grounded by moral conservatism. 

Figure 18: Gerhard Jobst and Willy Kreuer, Isometric sketch of Hansaviertel, 1957, pen on paper.

In alluding to religious symbolism, the capitalistic foundations of western democracy attain a certain universality, ascribing a divinity to the individualistic pursuit of wealth. The parabola of St. Ansgar’s plan is repeated in the Stubbin’s roof design for the American Congress Hall (figure 19), forging a connection between America’s political presence in Germany, and the moral underpinnings of Christianity. In cantilevering the roof beyond the buildings facade, Stubbin’s creates the impression of the all encompassing power of the west. This is made possible through steel construction technology, which subsequently supplants doctrine as the source of man’s enlightenment. There is a distinct American influence in the vertical emphasis of Hansaviertel’s high rises, especially that of Raymond Lopez and Eugène Beaudouin’s Bartningallee apartments. Their design is one of symmetry being subverted, as in plan the six apartments that make up each floor are axially and evenly arranged (figure 20). And yet, revealed in the expression of the facade, the corner dwellings are raised half a storey. The misalignment that this produces, coupled with the compact shafts of windows, makes the facade appear like a series of elevators, at different stages in their journey (figure 21). And in implying constant movement, the potential of the building’s verticality strives beyond its actual footprint. Perhaps an anticipation of the future power of West Berlin’s architectural image as its political power ascends, both of which at this point are only just emerging. 

Ambitions for verticality are contradicted, however, by the Interbau’s programme for a human-scale community, a design principle perceived to foster greater democratic involvement, within which, there is a judgement on the monumentality of soviet design. Architecture thus becomes involved with the administration of democracy, as it compels certain interactions through spatial integration, through which the ‘citizen of today can experience and learn the democratic process of give and take.” Understanding this, the partiality towards housing clustered together in either high rise towers, or one-storey complexes seems a mediation of two competing intentions. On the one hand, keeping the arrangement of a core unit at a human scale, perhaps why Gropius and Lopez limit the grouping of apartments on each level to four and six, respectively (figure 15 &18). While also, meeting the demand for housing density within a brief that priorities a ratio of 1:5.5 built to green space. The solution to this, greater height, becomes somewhat paradoxical when viewing Hansaviertel’s skyline, which seems alienated from the human scale. Interestingly, the facades of most of Hansaviertel’s buildings, including Gropius’ and Lopez’s are gridded, almost ornamentally, with windows and columns that articulate the “smallest social unit, not the individual, but the family,” of each separate apartment, contextualising the individual within the collective (figure 19). 

The Interbau’s interest in realising a universal design, that involves all aspects of human and natural life, has necessarily utopian aspirations. Yet, in seeking an individuality in the single building designs of the project, by including the contributions 53 architects, the divergent conceptions of what defines a utopia are given form. The Interbau is perhaps used then to consider transparency as its model for pursuing utopianism, even if it reveals some of the contradictions of formalising that ideal. There is a necessarily a power in being able to erect large scale urban designs, and as Jobst and Kreuer collapse the inside and outside realm, they facilitate a reconstruction of the power dynamic between the two. This is initially expressed in the choice of Hansaviertel as the site of Berlin’s public reconstruction, as its relation to the Tiergarten created ‘an appealing synthesis of townscape and landscape that would visually expand the Tiergarten’s boundaries.” Herta Hammerbacher’s landscaping, invites the external elements into the internal spaces, and, Gropius’ curved facade receives this protrusion (figure seven). He then reciprocates it by texturing the facade of his design with balconies that place the built world into the natural one. There is a freedom in this, as the walls that confine architecture’s footprint are reimagined as channels of integration with the natural world. Moreover, nature becomes a participatory element in the masterplan, as one uses it to cross expanses between paths. Thus nature is given equal hierarchy in the redesign of Hansaviertel, a principle that perhaps metaphors the dissolution of the power imbalance between the people that erect and operate within traditional, public democratic buildings and the rest of society that they supposedly represent. This possibly explains why most of the realised buildings at Hansaviertel are residential ones, as the programme of democratic design, is democratised to the individual. 

If Speer’s designs for the Third Reich and the GDR’s Berlin Wall, implicate architecture in undemocratic ideologies, we are posed to explore the equal potential for architecture to realise a democratic form. The Hansaviertel redesign formalises this line of thought, as it arises in reaction to the Stalinallee project, and seeks to define the freedom of its form firstly, through contrast with the soviet’s urban plan. This spawns a discourse between two two sides, that is waged through architecture, and culminates in the GDR’s erection of a wall where it borders the western sector. Architecture, in this case, comes to embody a restriction of freedom, and it perceives that it is much more difficult for architecture to assume a successful role in democracy, than in autocracy, as its influence must be muted, in order to not be construed as imposing.

References

Castillo, Gregory Alan. “Constructing the Cold War: Architecture, Urbanism and the Cultural Division of Germany, 1945-1957.” Ph.D., University of California, Berkeley, 2000. 

Dümpelmann, Sonja. “What’s in a word: on the politics of language in landscape architecture.” Studies in the History of Gardens & Designed Landscapes 34, no. 3 (2014): 207-225. https://doi.org/10.1080/14601176.2014.901118.

Farshchi, Kamran. “Revisiting Interbau Exhibition 1957 in Berlin, from the City of Stone to the City of Tomorrow.” Ph.D., Middle East Technical University, 2019. 

Geist, Johann Friedrich. Das Berliner Mietshaus. Munich: Prestel, 1980. 

Gropius, Walter. Scope of Total Architecture. New York, N.Y.: Collier Books, 1943. 

Hochman, Elaine S. “A Question of “Culpability.” The Art Bulletin 79, no. 4 (1997): 738-739. https://www.jstor.org/stable/3046288. 

Howell-Ardila, Deborah. “Berlin’s Search for a “Democratic” Architecture: Post-World War II and Post-unification.” German Politics & Society 16, no. 3 (1998): 62-85. https://www.jstor.org/stable/23737374.

Jobst, Gerhard. “Order in Urban Planning.” Bauwelt, 1954.

“Landscape Architecture.” Hansaviertel Berlin. Accessed April 30, 2022. https://hansaviertel.berlin/en/interbau-1957/landschaftsarchitektur/.

Ockman, Joan. “What Is Democratic Architecture?: The Public Life of Buildings.” Dissent, February 2, 2011. 

Parker, Martin. “Vertical capitalism: Skyscrapers and organization.” Culture and Organization 21, no. 3 (2015): 217-234. https://doi.org/10.1080/14759551.2013.845566.

Pugh, Emily. “A Capital without a Country: Shaping West Berlin’s Image in the Early Cold War.” In Architecture, Politics and Identity in Divided Berlin, 62-104. Pittsburgh: Pittsburgh University Press, 2014. 

Pritchard, David M. “Sport and Democracy in Classical Athens.” Antichthon 50, no. 11 (2016): 50-69. http://dx.doi.org/10.1017/ann.2016.5.

Schmidt, Leo. “The Architecture and Message of the “Wall,” 1961-1989.” German Politics & Society 29, no. 2 (2011): 57-77. https://www.jstor.org/stable/23744560. 

Schmidt, Thomas. “Architecture at the Service Sport.” Olympic Review 226 (1986): 468-471. https://library.olympics.com/Default/doc/SYRACUSE/47269/revue-olympique-organe-officiel-du-mouvement-olympique-comite-international-olympique.

Urban, Florian. “Recovering Essence through Demolition: The “Organic” City in Postwar West Berlin.” Journal of the Society of Architectural Historians 63, no. 3 (2004): 354-369. https://www.jstor.org/stable/4127975.

Previous
Previous

Mesoamerica and The Skyscraper